由鉅三希
44.4萬/坪
近2年成交均價
有優惠請提醒我
近期行情告知我

金牌專家
王立偉
永慶不動産(加盟店)文心河南加盟
- 歷史已成交75筆
- 熟悉社區·行業深耕4年
0972-528-586轉509125
預約賞屋,金牌專家陪你看房無憂
回電給我

加Line了解房屋內部設施配備情況
深耕社區·熟悉市場
社區問答
實地看房·最全社區攻略及評價
同價位社區幫對比
1. 社區規劃:車位配比合理,解決了社區居民停車難問題;公設包含接待大廳、中庭花園和空中花園等,提供舒適的公共空間和綠色環境。
2. 格局規劃:社區提供了5種不同的戶型,居民可以根據自己的需求和喜好選擇合適的房屋布局。
1. 環境機能:周邊1000公尺缺少購物中心,居民購物便利度較低。
3.4
中上等 水平
在七期重劃區生活圈排名超過69%社區
生活機能
3.2
區域均值:3.0
商業機能
5.0
區域均值:5.0
格局規劃
3.0
區域均值:3.4
周邊學校
4.4
區域均值:4.3
交通機能
3.9
區域均值:3.3
社區規劃
3.2
區域均值:2.9
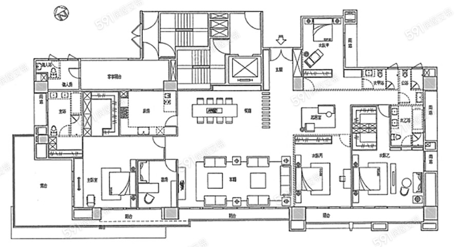
社區配置圖
主要格局
更新至113年2月(與內政部同步,每月1日/11日/21日定時更新)01/11更新
為什麼特殊交易的成交價更低?成交年月樓層單價
總價(不含車位)車位總價
地址操作
114-02
26樓
44.4 萬/坪
7,900萬
0房/160.7坪
待定 4
車位17.2坪
7,900 萬
市政路53號 | 26樓之1
113-05
27樓
49.5 萬/坪
7,963萬
3房/160.7坪
695 萬4
車位19.3坪
8,658 萬
市政路55號 | 27樓之1
查看明細 2
113-01
24樓
43.9 萬/坪
7,858萬
0房/161.6坪
待定 4
車位17.2坪
7,858 萬
市政路53號 | 24樓之5
112-07
16樓
58.2 萬/坪
4,390萬
4房/75.4坪
360 萬2
車位10.0坪
4,750 萬
市政路55號 | 16樓之2
查看明細 2
112-05
13樓
42.8 萬/坪
5,566萬
0房/115.1坪
待定 3
車位15.0坪
5,566 萬
市政路55號 | 13樓之1
查看明細 2
112-05
15樓
46.4 萬/坪
3,900萬
0房/75.4坪
待定 2
車位8.6坪
3,900 萬
市政路53號 | 15樓之3
111-12
18樓
38.8 萬/坪特殊交易
4,360萬
3房/112.5坪
540 萬3
車位15.0坪
4,900 萬
市政路53號 | 18樓之1
111-04
13樓
41.5 萬/坪
5,400萬
0房/115.1坪
待定 3
車位15.0坪
5,400 萬
市政路55號 | 13樓之1
查看明細 2
111-03
8樓
34.3 萬/坪特殊交易
2,820萬
2房/82.1坪
180 萬
車位5.0坪
3,000 萬
市政路55號 | 8樓之2
111-03
8樓
45.3 萬/坪
5,240萬
4房/115.6坪
310 萬2
車位8.6坪
5,550 萬
市政路53號 | 8樓之5
110-10
4樓
39.8 萬/坪
3,270萬
3房/82.1坪
180 萬
車位5.0坪
3,450 萬
市政路53號 | 4樓之2
110-08
16樓
42.6 萬/坪
5,550萬
0房/115.1坪
待定 3
車位15.0坪
5,550 萬
市政路53號 | 16樓之1
110-01
9樓
44.0 萬/坪
3,520萬
2房/80.1坪
360 萬2
車位10.0坪
3,880 萬
市政路53號 | 9樓之2
110-01
9樓
35.0 萬/坪
4,105萬
3房/117.2坪
515 萬3
車位14.3坪
4,620 萬
市政路53號 | 9樓之1
110-01
25樓
39.9 萬/坪
7,250萬
0房/161.6坪
待定 4
車位20.0坪
7,250 萬
市政路53號 | 25樓之5
110-01
7樓
41.9 萬/坪
3,625萬
4房/86.5坪
155 萬2
車位4.3坪
3,780 萬
市政路53號 | 7樓之2
查看明細 2
109-12
24樓
43.5 萬/坪
7,688萬
0房/161.6坪
待定 3
車位15.0坪
7,688 萬
市政路53號 | 24樓之1
109-04
13樓
42.0 萬/坪
3,390萬
3房/80.8坪
360 萬2
車位10.0坪
3,750 萬
市政路53號 | 13樓之2
查看明細 2
109-01
11樓
39.5 萬/坪
4,546萬
5房/115.1坪
390 萬3
車位12.9坪
4,936 萬
市政路55號 | 11樓之5
108-12
14樓
38.7 萬/坪
3,035萬
2房/78.4坪
360 萬2
車位10.0坪
3,395 萬
市政路55號 | 14樓之2
成交走勢
- 44.4萬
- 最新成交單價
114-02
- 58.2萬
- 最高成交單價
112-07
- 28.5萬
- 最低成交單價
105-02
周邊機能 地圖/周邊
由鉅三希
台中市西屯區市政路57號導航
七期重劃區
了解生活圈具體規劃
成交均價
30.10萬/坪
所在位置
台中市-西屯區,南屯區
捷運綠線
台灣家樂福股份有限公司一之鄉(台中家樂福文心店)T&R廣場
大墩國中惠文國民小學大墩國民小學
優質經紀人
附近社區推薦
附近搶手物件推薦

低於周邊同格局物件均價
葳🌟南屯捷運宅【陽光綠意】三房平車朝南視野戶
3房2廳2衛36.4坪
含車位有陽台有格局圖
1,288萬/坪35.38萬/坪

低於周邊同格局物件均價
TC【嶺東商圈】彩虹城二期😺車位可停休旅車👑歡迎預約看屋
3房2廳1衛34.76坪
含車位有格局圖
1,198萬/坪34.46萬/坪

638公尺到【文心櫻花站】
築實🐟降🔥FUN未來|三房高樓視野戶雙平車|西屯指標社區
3房2廳2衛53.44坪
含車位
2,798萬/坪52.36萬/坪

785公尺到【水安宮站】
七期優質大地坪別墅/使用空間超大/三平車/惠文學區
3房4廳4衛122.5坪
含車位有陽台有格局圖
5,280萬/坪43.1萬/坪

641公尺到【文心櫻花站】
想買來談精銳Fun未來帝王戶唯一面水湳雙車位
3房2廳2衛53坪
含車位有陽台
3,288萬/坪62.04萬/坪

低於周邊同格局物件均價
逢甲十二期精華地段|福星道鄰文修公園,主附17坪大兩房
2房2廳1衛30.257坪
含車位有格局圖
1,598萬/坪52.81萬/坪

低於周邊同格局物件均價
🐔西區美術館旁|15+16樓|無限視野四房平車|單坪28萬
4房2廳2衛95.5坪
含車位有陽台低公設
2,688萬/坪28.15萬/坪

低於周邊同格局物件均價
🔥稀有五期萬壽公園-採光明亮大兩房🍎
2房2廳1衛29.88坪
有陽台
868萬/坪29.05萬/坪

254公尺到【市政府站】
遠見🏠專任承辦|世界之心高樓層精裝小豪宅
1房1廳1衛17.69坪
有陽台有格局圖
913萬/坪51.61萬/坪

85公尺到【豐樂公園站】
遠雄文心匯,最好棟別+大車位稀有釋出!面豐樂公園視野戶
3房2廳2衛67.485坪
含車位有陽台
3,380萬/坪50.09萬/坪
591實價登錄為您提供:由鉅三希房價、實價登錄2.0,由鉅三希成交走勢、社區基本資料,由鉅三希在售中古屋,出租物件供對比、選擇;由鉅三希所在的七期重劃區均價以及周邊社區推薦;
all
all
all
all
all
all
all
all
all
all
all
all
all
all
all
all
all
all
all
all
all
all
all
all
all
all
all
all
all


































