鉅虹閱上景
44.1萬/坪
二手銷售均價
有降價請提醒我
最低成交告知我
預約賞屋,社區經紀人陪你看房無憂
- 10/16明日
- 10/17週五
- 10/18週六
- 10/19週日
- 10/20週一
- 10/21週二
- 10/22週三
- 日期待定
喬喬承辦💕北屯捷運公園首排四房雙平車永久景觀戶💕社區專員
4房2廳仲介張舒喬
31人瀏覽萬46.3萬/坪就是要賣📍中央山脈視野宅⟦鉅虹閱上景⟧北屯兒童公園第一排
4房2廳仲介曾唯任
51人瀏覽萬44.1萬/坪捷運宅。高樓綠景視野。鉅虹閱上景。精裝修直接住。下樓萬坪公園
4房2廳仲介詹先生
61人瀏覽萬44.1萬/坪【住商長安劉燦陽】鉅虹閱上景四房雙車位面公園
4房4廳仲介劉先生
59人瀏覽4.6% 較之前價格降了4.6%
4390萬萬4390萬46.3萬/坪鉅虹閱上景.面公園遠眺無限棟距.四房雙平車.藍寶堅尼
4房2廳仲介藍尼馨
71人瀏覽萬44.1萬/坪查查🌸獨家北屯兒童公園第一排|鉅虹閱上景四房雙平車
4房2廳仲介盧偉君
38人瀏覽萬44.1萬/坪

加Line了解房屋內部設施配備情況
深耕社區·熟悉市場
社區問答
實地看房·最全社區攻略及評價
同價位社區幫對比
1. 社區規劃:車位配比合理,居民停車方便;公設包含接待大廳,中庭花園,空中花園等,提供了豪華舒適的休閒和娛樂設施。
2. 環境機能:距離四維國小約176公尺,方便家有孩子的居民;距離台中市北屯區四維國民小學約188公尺,方便家長送孩子上學。
1. 環境機能:周邊1000公尺缺少購物中心,居民購物便利度較低,需要更遠的距離去購買日常生活用品。
3.7
上等 水平
在四期重劃區生活圈排名超過95%社區
生活機能
3.0
區域均值:2.9
商業機能
5.0
區域均值:5.0
格局規劃
3.7
區域均值:3.5
周邊學校
4.4
區域均值:4.6
交通機能
5.0
區域均值:3.8
社區規劃
3.3
區域均值:2.6
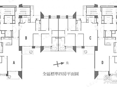
社區配置圖
主要格局
周邊機能 地圖/周邊
鉅虹閱上景
台中市北屯區導航
四期重劃區
了解生活圈具體規劃
成交均價
44.50萬/坪
所在位置
台中市-西區,北區,北屯區,西屯區
捷運綠線
熊貓購物中心
重慶國民小學大仁國民小學文昌國民小學
優質經紀人
附近社區推薦
591實價登錄為您提供:鉅虹閱上景房價、實價登錄2.0,鉅虹閱上景成交走勢、社區基本資料,鉅虹閱上景在售中古屋,出租物件供對比、選擇;鉅虹閱上景所在的四期重劃區均價以及周邊社區推薦;