社區詳情

黑松通商大樓·相簿

  • 全部圖片(7)
  • 街景
封面(1)
黑松通商大樓-封面01
外觀圖(4)
黑松通商大樓-外觀圖01
黑松通商大樓-外觀圖02
黑松通商大樓-外觀圖03
黑松通商大樓-外觀圖04
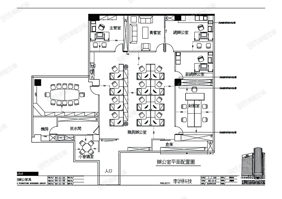
格局圖(2)
黑松通商大樓-格局圖01
黑松通商大樓-格局圖02
沒有更多了唷~