達莉·朵茉
62.1萬/坪
近1年成交均價
有優惠請提醒我
近期行情告知我
預約賞屋,社區經紀人陪你看房無憂
- 05/16明日
- 05/17週日
- 05/18週一
- 05/19週二
- 05/20週三
- 05/21週四
- 05/22週五
- 日期待定
林冠辰~🌈達莉朵莫雙套房雙平車精裝戶🌈
2房2廳
仲介林冠辰225人瀏覽萬43.3萬/坪價降🍎西區最俗。社區最優惠|達莉朵茉|精裝兩房平車
2房1廳
仲介吳千禾200人瀏覽2.7% 較之前價格降了2.7%1498萬萬1498萬51.2萬/坪歐妮嚴選|五期大業學區小豪宅|兩房兩衛雙平車
2房2廳
仲介胡滋芸21人瀏覽萬43.3萬/坪💯信實小江🀄️五期黃金地段|達莉朵茉兩房雙主臥雙平車
2房2廳
仲介江欣翰104人瀏覽4.5% 較之前價格降了4.5%1988萬萬1988萬43.3萬/坪我獨賣大降價★最強五期【達莉朵茉】邊間2房2衛+平車
2房2廳
仲介梁清忠283人瀏覽萬51.8萬/坪【樂福集團】五期2房2衛2平車
2房2廳
仲介李東和83人瀏覽萬43.3萬/坪

加Line了解房屋內部設施配備情況
深耕社區·熟悉市場
社區問答
實地看房·最全社區攻略及評價
同價位社區幫對比
社區綜合評分
4.10
地段環境
4.10
社區規劃
3.90
1. 1-五期精華區,地段加分。
2. 2-兩房雙衛浴的設計,不用搶廁所。
1. 1-坪數較小,室內空間略感擁擠。

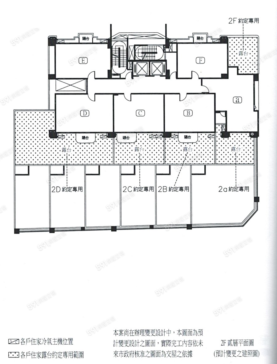
社區配置圖
主要格局
更新至115年5月(與內政部同步,每月1日/11日/21日定時更新)05/11更新
加Line,1V1為你解讀社區成交趨勢成交年月樓層單價
總價(不含車位)車位總價
地址操作
115-01
7樓
62.1 萬/坪
1,425萬
2房/22.9坪
175 萬
車位10.0坪
1,600 萬
大墩十街100號 | 7樓之5
查看明細 2
114-10
10樓
62.6 萬/坪
1,493萬
2房/23.9坪
175 萬
車位10.0坪
1,668 萬
大墩十街100號 | 10樓之1
查看明細 3
114-09
7樓
60.1 萬/坪
1,435萬
2房/23.9坪
175 萬
車位10.0坪
1,610 萬
大墩十街100號 | 7樓之1
查看明細 3
113-08
10樓
67.7 萬/坪
1,375萬
2房/20.3坪
175 萬
車位10.0坪
1,550 萬
大墩十街100號 | 10樓之6
查看明細 2
113-07
3樓
59.0 萬/坪
1,183萬
2房/20.0坪
167 萬
車位9.5坪
1,350 萬
大墩十街100號 | 3樓之2
查看明細 2
113-06
1樓
55.1 萬/坪一樓
3,150萬
0房/37.2坪
待定
車位20.0坪
3,150 萬
大墩十街106號 | 1樓
查看明細 2
113-04
6樓
55.4 萬/坪
1,125萬
2房/20.3坪
175 萬
車位10.0坪
1,300 萬
大墩十街100號 | 6樓之6
查看明細 2
112-03
3樓
52.0 萬/坪
960萬
2房/18.5坪
175 萬
車位10.0坪
1,135 萬
大墩十街100號 | 3樓之7
查看明細 2
112-02
9樓
53.7 萬/坪
1,075萬
2房/20.0坪
175 萬
車位10.0坪
1,250 萬
大墩十街100號 | 9樓之3
查看明細 2
111-11
1樓
45.1 萬/坪一樓
3,425萬
0房/75.9坪
待定
車位面積待定
3,425 萬
大墩十街102號 | 1樓
查看明細 2
111-06
4樓
52.3 萬/坪
1,048萬
2房/20.0坪
200 萬
車位10.0坪
1,248 萬
大墩十街100號 | 4樓之2
查看明細 2
111-06
10樓
47.7 萬/坪
1,138萬
1房/23.9坪
200 萬
車位10.0坪
1,338 萬
大墩十街100號 | 10樓之1
查看明細 3
111-05
7樓
46.1 萬/坪
1,100萬
2房/23.9坪
200 萬
車位10.0坪
1,300 萬
大墩十街100號 | 7樓之1
查看明細 3
111-05
8樓
36.9 萬/坪
680萬
2房/18.5坪
200 萬
車位10.0坪
880 萬
大墩十街100號 | 8樓之7
查看明細 2
111-04
3樓
54.1 萬/坪
1,100萬
2房/20.3坪
200 萬
車位10.0坪
1,300 萬
大墩十街100號 | 3樓之6
查看明細 2
111-04
4樓
43.0 萬/坪
1,025萬
2房/23.9坪
400 萬2
車位20.0坪
1,425 萬
大墩十街100號 | 4樓之1
查看明細 2
111-03
1樓
66.0 萬/坪一樓
2,388萬
0房/36.2坪
600 萬
車位30.0坪
2,988 萬
大墩十街100號 | 1樓
111-03
1樓
71.4 萬/坪一樓
2,600萬
0房/36.4坪
800 萬
車位39.5坪
3,400 萬
大墩十街102號 | 1樓
查看明細 2
111-03
5樓
44.0 萬/坪
1,050萬
2房/23.9坪
400 萬2
車位20.0坪
1,450 萬
大墩十街100號 | 5樓之1
查看明細 2
111-02
7樓
47.7 萬/坪
970萬
2房/20.3坪
200 萬
車位10.0坪
1,170 萬
大墩十街100號 | 7樓之6
查看明細 2
成交走勢
- 62.1萬
- 最新成交單價
115-01
- 67.7萬
- 最高成交單價
113-08
- 34.2萬
- 最低成交單價
108-07
周邊機能 地圖/周邊
達莉·朵茉
台中市西區大墩十街90號導航
五期重劃區
了解生活圈具體規劃
成交均價
31.80萬/坪
所在位置
台中市-西區,西屯區,南屯區
暫無
暫無
東興國民小學立漢口國民中學大新國民小學
附近社區推薦
附近搶手物件推薦

200公尺到【臺灣大道民權路口站】
【台灣國寶|21樓極致視野|成熟生活機能|高樓層採光三房】
3房2廳2衛67.494坪
含車位有陽台有格局圖
2,550萬/坪37.78萬/坪

低於周邊同格局物件均價
🌈不要管開價🔥13期中山醫大慶|三房大平車高樓視野戶
3房2廳2衛36.1坪
含車位有格局圖
1,088萬/坪30.14萬/坪

🔥獨家|稀有釋出|鄰雙橡園2279|高樓視野戶🔥
2房2廳2衛67.08坪
含車位
3,688萬/坪54.98萬/坪

低於周邊同格局物件均價
超便宜A案|北區|單坪24萬|室內50坪|高樓大三房+平車
3房2廳2衛61.75坪
含車位有陽台
1,488萬/坪24.1萬/坪

低於周邊同格局物件均價
🏆專任🏆文華匯次頂樓美式鄉村風大兩房休旅車位
2房2廳1衛27.38坪
含車位
1,450萬/坪52.96萬/坪

629公尺到【大新國小操場】,上學超安心
小邱推薦🧚🏻♀️西區五期小豪宅『朵茉』兩房兩衛雙平車
2房2廳2衛43.84坪
含車位有格局圖
1,898萬/坪43.29萬/坪

95公尺到【捷運文心森林公園站(文心路)】
林冠辰~🌈達莉朵莫雙套房雙平車精裝戶🌈
2房2廳2衛43.85坪
含車位有陽台
1,898萬/坪43.28萬/坪

629公尺到【大新國小操場】,上學超安心
🍎達莉朵茉🍎西區五期小豪宅稀有⭐2房2衛雙車位⭐
2房2廳2衛43.848坪
含車位有格局圖
1,898萬/坪43.29萬/坪

629公尺到【大新國小操場】,上學超安心
藍筱茹達莉朵茉兩房兩衛雙平車
2房2廳2衛43.85坪
含車位
1,898萬/坪43.28萬/坪

629公尺到【大新國小操場】,上學超安心
信實豪豪他爸🐻五期黃金地段|兩房雙主臥雙連號平車稀有釋出
2房2廳2衛43.85坪
含車位
1,898萬/坪43.28萬/坪
591實價登錄為您提供:達莉·朵茉房價、實價登錄2.0,達莉·朵茉成交走勢、社區基本資料,達莉·朵茉在售中古屋,出租物件供對比、選擇;達莉·朵茉所在的五期重劃區均價以及周邊社區推薦;
all
all
all
all
all
all
all
all
all
all
all
all
all
all
all
all
all
all
all
all
all
all
all
all
all
all
all
all
all
all
all
all
all
all
all
all

































