社區詳情
華山丰華·相簿
全部圖片(9)
街景
封面(1)
環境圖(7)
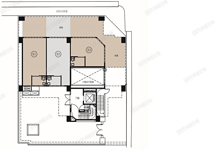
平面圖(1)
沒有更多了唷~
打開影音連結