社區詳情
佳陞景綻·相簿
全部圖片(23)
街景
封面(1)
3D示意圖(1)
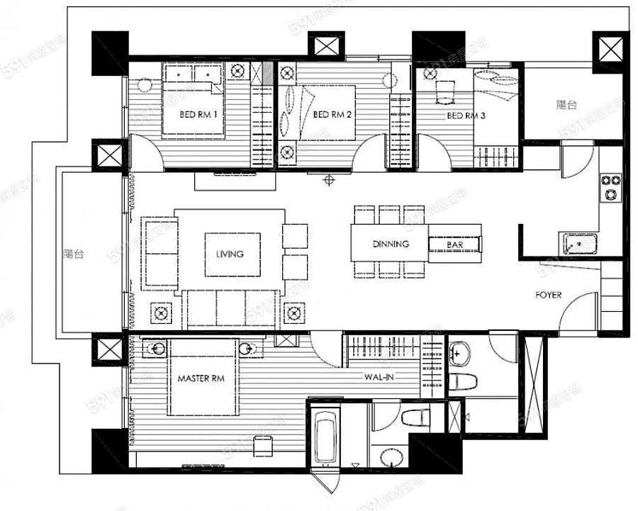
格局圖(2)
樣品屋(11)
環境圖(6)
交通圖(1)
平面圖(1)
沒有更多了唷~
打開影音連結