昇祐DNA
16.0萬/坪
成交均價
有優惠請提醒我
近期行情告知我
屋齡
5年建築形態
住宅大樓總戶數
100戶租戶佔比多少>
車位數量
平面式24個、機械式88個車位交易情況>
地址
龍井車站台中市龍井區竹師路二段75巷28號更多信息
基礎資訊、營運管理、社區規劃等預約賞屋,社區經紀人陪你看房無憂
- 05/18明日
- 05/19週二
- 05/20週三
- 05/21週四
- 05/22週五
- 05/23週六
- 05/24週日
- 日期待定
龍井|市場最優惠🌳【室內27坪】高樓大三房+休旅車位
3房2廳
仲介顏先生20人瀏覽萬22.5萬/坪專任🍁龍井三房雙採光|近國3|10分鐘東海沙鹿|低於行情
3房2廳
仲介本先生27人瀏覽萬21.7萬/坪大降100萬🌳龍井輕屋齡🌳高樓視野🌳大三房+休旅車位
3房2廳
仲介石凱任68人瀏覽萬22.9萬/坪專員龍井輕屋齡昇祐DNA室內28坪大三房附車位
3房2廳
仲介彭憶婷128人瀏覽9.3% 較之前價格降了9.3%1188萬萬1188萬21.7萬/坪萬中選儀🍒龍井車站|昇祐DNA|輕屋齡大三房車|全室開窗室
3房2廳
仲介吳婉儀 萬中選儀142人瀏覽9.3% 較之前價格降了9.3%1188萬萬1188萬21.7萬/坪龍井|大三房輕屋齡休旅車位|遠見房屋
3房2廳
仲介遠見房屋南屯黎明店92人瀏覽8.3% 較之前價格降了8.3%1198萬萬1198萬22.5萬/坪

加Line了解房屋內部設施配備情況
深耕社區·熟悉市場
社區問答
實地看房·最全社區攻略及評價
同價位社區幫對比
1. 社區規劃:屋齡3年,房屋設施更新且良好;車位配比1:1.12,社區居民停車方便充足;公設包含接待大廳、中庭花園、交誼廳等,為社區提供了舒適的休閒和社交空間。
2. 環境機能:距離龍井加油站公車站約289公尺,出行便利;距離台中市龍井區龍泉國民小學約830公尺,方便孩子上學。
1. 社區規劃:機械式車位,容易出現故障且修理成本高,給社區居民帶來不便和額外費用負擔。
3.4
中上等 水平
在龍井車站生活圈排名超過78%社區
生活機能
3.2
區域均值:2.5
商業機能
5.0
區域均值:4.6
格局規劃
2.7
區域均值:3.4
周邊學校
3.7
區域均值:3.6
交通機能
2.7
區域均值:2.6
社區規劃
3.6
區域均值:3.0
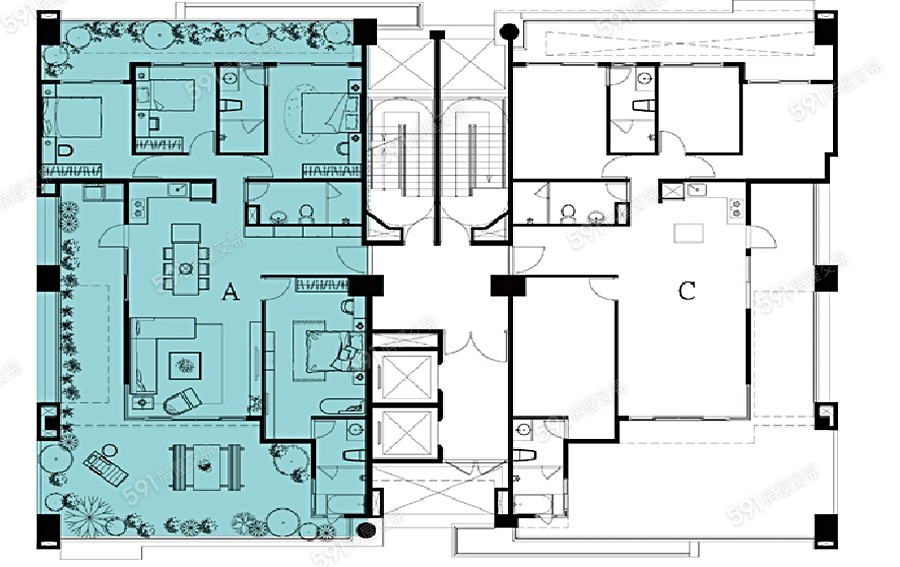
社區配置圖
主要格局
更新至115年5月(與內政部同步,每月1日/11日/21日定時更新)05/11更新
近半年社區成交價是漲了還是降了?成交年月樓層單價
總價(不含車位)車位總價
地址操作
114-11
3樓
19.4 萬/坪
606萬
2房/31.3坪
132 萬
車位6.8坪
738 萬
竹師路二段75巷28號 | 3樓之7
查看明細 2
112-11
3樓
20.2 萬/坪
864萬
3房/42.8坪
91 萬
車位6.8坪
955 萬
竹師路二段75巷30號 | 3樓之1
112-06
6樓
19.0 萬/坪
596萬
2房/31.3坪
54 萬
車位6.7坪
650 萬
竹師路二段75巷28號 | 6樓之1
查看明細 2
112-04
11樓
18.9 萬/坪
375萬
1房/19.8坪
91 萬
車位6.8坪
466 萬
竹師路二段75巷28號 | 11樓之6
查看明細 2
112-04
1樓
20.5 萬/坪特殊交易
940萬
3房/45.8坪
待定
車位面積待定
940 萬
竹師路二段75巷30號 | 1樓
111-12
1樓
17.8 萬/坪特殊交易
759萬
3房/42.8坪
91 萬
車位6.8坪
850 萬
竹師路二段75巷30號 | 1樓
111-06
1樓
21.4 萬/坪特殊交易
1,260萬
4房/58.9坪
110 萬
車位13.7坪
1,370 萬
竹師路二段75巷30號 | 1樓
110-10
3樓
17.2 萬/坪
344萬
1房/20.0坪
91 萬
車位6.8坪
435 萬
竹師路二段75巷28號 | 3樓之5
查看明細 2
110-07
1樓
16.4 萬/坪特殊交易
684萬
3房/41.8坪
91 萬
車位6.8坪
775 萬
竹師路二段75巷30號 | 1樓
110-06
12樓
18.4 萬/坪
862萬
3房/46.9坪
126 萬
車位14.3坪
988 萬
竹師路二段75巷28號 | 12樓之2
110-05
10樓
17.2 萬/坪
720萬
3房/41.9坪
60 萬
車位6.8坪
780 萬
竹師路二段75巷30號 | 10樓之2
110-04
11樓
17.5 萬/坪
350萬
1房/20.0坪
0 萬
無車位
350 萬
竹師路二段75巷28號 | 11樓之5
查看明細 2
110-04
3樓
16.5 萬/坪
327萬
1房/19.8坪
91 萬
車位6.8坪
418 萬
竹師路二段75巷28號 | 3樓之6
查看明細 2
110-01
8樓
16.0 萬/坪
320萬
1房/20.0坪
60 萬
車位6.7坪
380 萬
竹師路二段75巷28號 | 8樓之6
110-01
1樓
15.7 萬/坪特殊交易
670萬
3房/42.8坪
60 萬
車位6.8坪
730 萬
竹師路二段75巷30號 | 1樓
109-08
8樓
16.5 萬/坪
698萬
3房/42.3坪
60 萬
車位6.7坪
758 萬
竹師路二段75巷30號 | 8樓之1
109-08
10樓
16.6 萬/坪
706萬
3房/42.5坪
60 萬
車位6.7坪
766 萬
竹師路二段75巷30號 | 10樓之3
109-08
10樓
17.0 萬/坪
720萬
3房/42.3坪
60 萬
車位6.7坪
780 萬
竹師路二段75巷30號 | 10樓之1
109-08
11樓
18.3 萬/坪
1,124萬
4房/61.4坪
126 萬
車位14.0坪
1,250 萬
竹師路二段75巷30號 | 11樓之1
109-06
7樓
16.3 萬/坪
690萬
3房/42.3坪
60 萬
車位6.7坪
750 萬
竹師路二段75巷30號 | 7樓之1
成交走勢
- 19.4萬
- 最新成交單價
114-11
- 30.3萬
- 最高成交單價
107-08
- 13.0萬
- 最低成交單價
107-12
龍井車站生活圈
了解生活圈具體規劃
成交均價
28.30萬/坪
所在位置
台中市-龍井區
龍井車站台灣鐵路管理局龍井火車站
暫無
龍山國民小學龍泉國民小學
附近社區推薦
附近搶手物件推薦

317公尺到【臺中市沙鹿區鹿陽國小(興建中)】,上學超安心
宏觀廣大店💯喬立MeTown兩房+平車
2房2廳1衛39坪
含車位
1,080萬/坪27.69萬/坪

低於周邊同格局物件均價
旺旺來囉.近中科朝東高樓層三房平車|成家上上籤
3房2廳2衛42.2坪
含車位
1,398萬/坪33.13萬/坪

低於周邊同格局物件均價
【凱心成家】新光田特區|允將上上謙|高樓朝南三房平車
3房2廳2衛43.33坪
含車位有格局圖
1,298萬/坪29.96萬/坪

低於周邊同格局物件均價
大降100萬🌳龍井輕屋齡🌳高樓視野🌳大三房+休旅車位
3房2廳2衛48坪
含車位有陽台有格局圖
1,098萬/坪22.88萬/坪

低於周邊同格局物件均價
全新允將上上謙|高樓層視野戶|三房B1平車近中科新光田!
3房2廳2衛42.3坪
含車位
1,398萬/坪33.05萬/坪

低於周邊同格局物件均價
專員龍井輕屋齡昇祐DNA室內28坪大三房附車位
3房2廳2衛49.59坪
含車位有格局圖
1,078萬/坪21.74萬/坪

低於周邊同格局物件均價
晨辰專任🧊時代一景2+1房採光通風戶!鑒價到位!低總價入主
2房2廳1衛41.38坪
含車位
998萬/坪24.12萬/坪

低於周邊同格局物件均價
🔥別管開價~🔥中科一路發|3房車位|658萬輕鬆入手
3房2廳2衛30.353坪
含車位
658萬/坪21.68萬/坪

低於周邊同格局物件均價
專任🍁龍井三房雙採光|近國3|10分鐘東海沙鹿|低於行情
3房2廳2衛49.6坪
含車位有格局圖
1,078萬/坪21.73萬/坪

低於周邊同格局物件均價
三陽玉府天宮附近低總價大三房休旅車位昇祐DNA三面採光
3房2廳2衛49.6坪
含車位有格局圖
1,078萬/坪21.73萬/坪
591實價登錄為您提供:昇祐DNA房價、實價登錄2.0,昇祐DNA成交走勢、社區基本資料,昇祐DNA在售中古屋,出租物件供對比、選擇;昇祐DNA所在的龍井車站均價以及周邊社區推薦;
all
all
all
all
all
all
all
all
all
all
all
all
all
all
all
all
all
all
all
all
all
all
all
all
all
all
all
all

































