昌祐品觀
44.7萬/坪
近2年成交均價
有優惠請提醒我
近期行情告知我
預約賞屋,社區經紀人陪你看房無憂
- 01/17明日
- 01/18週日
- 01/19週一
- 01/20週二
- 01/21週三
- 01/22週四
- 01/23週五
- 日期待定
南屯嶺東忠勇雙熱鬧商圈9年屋視野2房平車
2房2廳
仲介梁靜云29人瀏覽萬38.4萬/坪大降價低於實登|南屯三房雙衛浴開窗|雙面採光
3房2廳
仲介林思思57人瀏覽萬34.6萬/坪✪精科三房平車雙衛開窗小家庭的最愛
3房2廳
仲介值班人員32人瀏覽萬36.4萬/坪程蕉我是承辦🍌南屯區精密園區昌祐品觀3房平車雙衛開窗屋主急
3房2廳
仲介程蕉小姐年度8百萬74人瀏覽萬34.6萬/坪精密園區/嶺東科大震後3房平車
3房2廳
仲介陳沛緹59人瀏覽4.7% 較之前價格降了4.7%1658萬萬1658萬34.6萬/坪✨降價!屋主急售!出價談!低於實登!雙衛開窗!大三房柱邊平車
3房2廳
仲介吳先生288人瀏覽萬34.6萬/坪

加Line了解房屋內部設施配備情況
深耕社區·熟悉市場
社區問答
實地看房·最全社區攻略及評價
同價位社區幫對比
1. 社區規劃:車位配比合理,居民停車方便;公設包含接待大廳、中庭花園、健身房等,提供多樣化的休閒娛樂設施。
2. 環境機能:距離嶺東科技大學(永春南路)公車站約785公尺,方便學生和教職工的出行;距離台中市南屯區文山國民小學約604公尺,家長可以更方便地送孩子上學。
1. 環境機能:周邊1000公尺缺少購物中心,居民購物便利度不高,需要花更多時間和精力到其他地方購買日常用品。
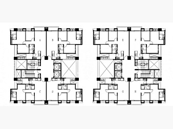
社區配置圖
主要格局
更新至113年2月(與內政部同步,每月1日/11日/21日定時更新)01/11更新
為什麼特殊交易的成交價更低?成交年月樓層單價
總價(不含車位)車位總價
地址操作
113-09
6樓
31.5 萬/坪特殊交易
870萬
2房/27.7坪
130 萬
車位10.9坪
1,000 萬
保安五街17號 | 6樓之5
113-06
5樓
46.2 萬/坪
1,280萬
2房/27.7坪
130 萬
車位10.9坪
1,410 萬
保安五街17號 | 5樓之3
查看明細 3
113-05
9樓
44.7 萬/坪
1,238萬
2房/27.7坪
130 萬
車位10.9坪
1,368 萬
保安五街19號 | 9樓之5
查看明細 2
113-04
4樓
38.1 萬/坪
1,320萬
3房/34.6坪
130 萬
車位10.9坪
1,450 萬
保安五街19號 | 4樓之1
查看明細 2
112-11
12樓
37.7 萬/坪
1,046萬
2房/27.7坪
180 萬
車位10.9坪
1,226 萬
保安五街19號 | 12樓之5
112-11
6樓
38.6 萬/坪
1,070萬
2房/27.7坪
180 萬
車位10.9坪
1,250 萬
保安五街17號 | 6樓之3
查看明細 3
112-10
11樓
36.6 萬/坪
1,270萬
3房/34.7坪
180 萬
車位10.9坪
1,450 萬
保安五街19號 | 11樓之2
查看明細 2
112-10
2樓
34.8 萬/坪
1,170萬
3房/33.6坪
180 萬
車位10.9坪
1,350 萬
保安五街17號 | 2樓之1
查看明細 2
112-06
9樓
39.3 萬/坪
1,090萬
2房/27.7坪
180 萬
車位10.9坪
1,270 萬
保安五街17號 | 9樓之3
查看明細 2
111-10
3樓
34.9 萬/坪
1,210萬
3房/34.7坪
120 萬
車位10.9坪
1,330 萬
保安五街19號 | 3樓之2
查看明細 3
111-07
10樓
25.4 萬/坪
880萬
3房/34.6坪
120 萬
車位10.9坪
1,000 萬
保安五街17號 | 10樓之2
查看明細 3
111-07
8樓
34.9 萬/坪
1,208萬
3房/34.6坪
120 萬
車位10.9坪
1,328 萬
保安五街17號 | 8樓之2
查看明細 2
111-06
4樓
35.1 萬/坪
970萬
2房/27.7坪
120 萬
車位10.9坪
1,090 萬
保安五街17號 | 4樓之5
查看明細 2
111-06
2樓
35.7 萬/坪
970萬
2房/27.1坪
120 萬
車位10.9坪
1,090 萬
保安五街17號 | 2樓之3
查看明細 2
111-04
3樓
34.7 萬/坪
1,200萬
3房/34.6坪
120 萬
車位10.9坪
1,320 萬
保安五街19號 | 3樓之1
查看明細 2
111-03
8樓
33.0 萬/坪
1,146萬
3房/34.7坪
120 萬
車位10.9坪
1,266 萬
保安五街17號 | 8樓之1
查看明細 3
111-02
2樓
33.4 萬/坪
1,125萬
3房/33.6坪
120 萬
車位10.9坪
1,245 萬
保安五街19號 | 2樓之2
查看明細 2
110-12
5樓
31.9 萬/坪
1,106萬
3房/34.7坪
120 萬
車位10.9坪
1,226 萬
保安五街17號 | 5樓之1
查看明細 3
110-10
3樓
29.1 萬/坪
1,010萬
2房/34.7坪
240 萬2
車位21.8坪
1,250 萬
保安五街17號 | 3樓之1
查看明細 2
110-08
5樓
30.0 萬/坪
832萬
2房/27.7坪
120 萬
車位10.9坪
952 萬
保安五街17號 | 5樓之3
查看明細 3
成交走勢
- 46.2萬
- 最新成交單價
113-06
- 46.2萬
- 最高成交單價
113-06
- 19.7萬
- 最低成交單價
108-06
嶺東科大生活圈
了解生活圈具體規劃
成交均價
25.30萬/坪
所在位置
台中市-南屯區
暫無
暫無
文山國民小學春安國民小學
優質經紀人
附近社區推薦
附近搶手物件推薦

低於周邊同格局物件均價
獨家🌟黎明大地☀️稀有超大四房高樓視野戶
4房2廳2衛43.477坪
有格局圖
888萬/坪20.42萬/坪

低於周邊同格局物件均價
南屯嶺東精科💥微笑城市💥高樓兩房平車,破盤價!!
2房2廳1衛35.179坪
含車位
1,198萬/坪34.05萬/坪

低於周邊同格局物件均價
小蔡💖嶺東專任3房車位首購宅|五權豪門
3房2廳2衛38.218坪
含車位有陽台
768萬/坪20.1萬/坪

低於周邊同格局物件均價
釩💎專任嶺東商圈/綠光city/邊間採光2房平車
2房2廳1衛40.64坪
含車位有陽台
1,288萬/坪31.69萬/坪

347公尺到【中部辦公室站】
專簽|開價低於實登|正7期飯店式管理雙塔建築|身分象徵小豪宅
1房1廳1衛27.44坪
含車位有陽台
1,368萬/坪49.85萬/坪

低於周邊同格局物件均價
專任🔥南屯⭐️公園旁|邊間採光2+1房柱邊平車
2房2廳1衛40.64坪
含車位有陽台
1,288萬/坪31.69萬/坪

228公尺到【惠文國小站】
文心森林公園・雙捷運站.精銳米蘭大3房|雙主臥|三衛浴三車位
3房2廳3衛102.9坪
含車位有陽台
3,988萬/坪38.76萬/坪

低於周邊同格局物件均價
獨家唯一釋出🌈彩虹城二期高樓景觀🌈二房二衛+休旅車位
2房2廳2衛37.75坪
含車位有陽台有格局圖
1,298萬/坪34.38萬/坪

低於周邊同格局物件均價
專任文華匯💯社區高樓層開價最便宜大兩房休旅車位
2房2廳1衛27.38坪
含車位有格局圖
1,498萬/坪54.71萬/坪

低於周邊同格局物件均價
軒🍎專任七期【文華匯】次頂樓裝潢✨兩房休旅車位
2房2廳1衛27.384坪
含車位有陽台有格局圖
1,498萬/坪54.7萬/坪
591實價登錄為您提供:昌祐品觀房價、實價登錄2.0,昌祐品觀成交走勢、社區基本資料,昌祐品觀在售中古屋,出租物件供對比、選擇;昌祐品觀所在的嶺東科大均價以及周邊社區推薦;
all
all
all
all
all
all
all




























